Дом по адресу Москва, деревня Поповка, за 37000000 р.

Адрес Москва, деревня Поповка, Изумрудная улица,12
Цена 37 000 000 р.
Площадь дома 500 м2, участка 15 м2
Кол-во комнат 5
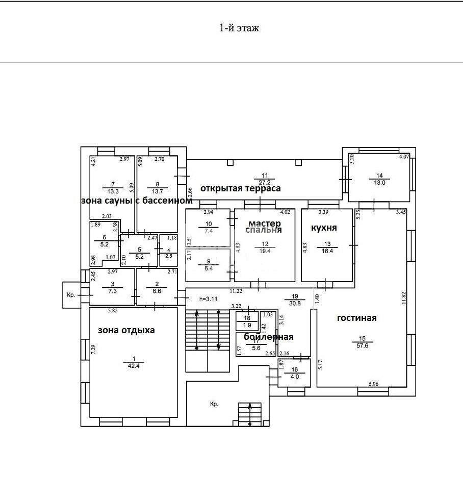
Просторный Коттедж в КП "Серебряная лагуна" на прилесном участке! Коттедж расположен в живописном месте вблизи г. Раменское и неподалеку реки Гжелка на участке 15 соток с выходом в смешанную лесную чащу. Конструктив: Фундамент - кессонный заливной;Стены - керамический блок "Porotherm" + утеплитель + отделочный кирпич;Кровля - мягкая черепица; Коммуникации: Водоснабжение - скважина 60 м;Водоотведение - сооружение биологической очистки;Отопление - магистральный газ (подведен в дом) ;Электричество - 15 кВт. Планировка: 1 этаж - входная группа, бойлерная, гостиная, зона кухни, мастер-спальня, зона сауны с бассейном, зона отдыха, открытая терраса с видом на лес. 2 этаж- три изолированных мастер-спальни с собственным сан. узлом и гардеробной, открытая терраса. 3 этаж - помещение свободного назначения. Инфраструктура: В шаговой доступности магазины, маркетплейсы, автобусная остановка. В 5-ти минутах езды: река Гжелка с зоной отдыха и рыболовной базой, общеобразовательная школа, детский сад, конный клуб и многое другое. Хорошая транспортная доступность. Показ в любое удобное для вас время!
Объявление № 23460022
Дата подачи:
22 октября 2025 г. 5:55
Дата обновления:
22 октября 2025 г. 5:55
Просмотров 20 Хотите продать быстрее?

Продавец
KASKAD Недвижимость
Показать номер телефона
Пожаловаться
Комментарии:
Добавить